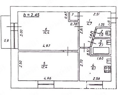
Продажа 2х-комнатной квартиры

41 м²
Площадь
29.00 м²
Жилая площадь
6.10 м²
Площадь кухни
2/5
Этаж

4 300 000 ₽

104 623 ₽ за м²

ID объявления 12164877

Поделиться

Добавить в избранное

Ближнее Заволжье, площадь Мира.
Очень светлая теплая 2-комнатная квартира в кирпичном доме.
Свежий современный ремонт. Окна юго-восток. Стеклопакеты. Балкон застеклен.
С/у раздельный, кафель. Полы - ламинат. 
Остается встроенная кухня, встроенные шкафы.
Прекрасное месторасположение. Рядом магазины, остановки общественного транспорта, зоны отдыха. Набережная р. Волги в 100м.
Закрытый двор.

Дата обновления: 24 октября 2025