Продажа дома

Тверская область, Неготино д, , 16А

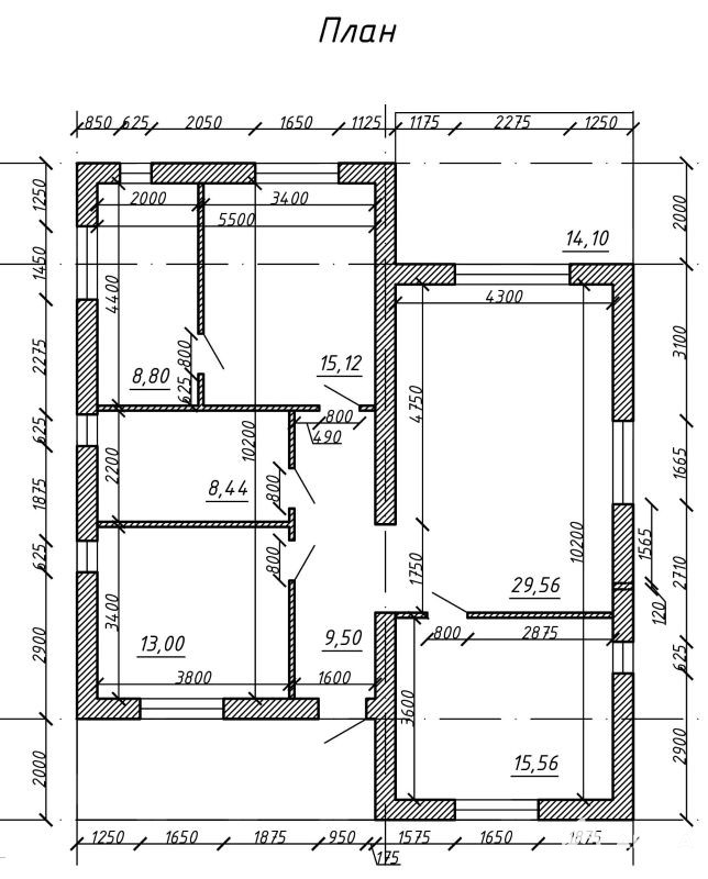
110 м²
Площадь
43.50 м²
Жилая площадь
29.50 м²
Площадь кухни
1
Этажность
10 сот
Площадь участка

14 800 000 ₽

134 546 ₽ за м²

ID объявления 10531004

Поделиться

Добавить в избранное

Продажа от физ лица, под семейную ипотеку не подходит.
Дом в д. Неготино с отличной локацией, всего 500 метров от окружной дороги, 10 минут и вы в городе.
Дом с евро отделкой, заезжай и живи, никто не жил. Все продумано до мелочей.
Дом из газосиликата, общей площадью 110 кв.м. Грамотная, продуманная планировка
-кухня-гостиная 29, 5 кв.м., с кухонным гарнитуром
- три изолированные спальни (15, 5+15+13 кв.м.) (хозяйская мастер-спальня 15, 5 кв.м. со своим сан/узлом и гардеробной.
- два сан/узла (душ и ванная)
Коммуникации - газ подведен
Водоснабжение - колодец
Канализация - станция биоочистки
Электричество - 15 кВт.
Вокруг дома сделана дренажная система, место высокое, сухое.
Фундамент - утепленная монолитная шведская плита с интегрированным теплым полом - 300 мм.
Стены - газоблоки 400 мм
Утепленная плоская крыша с уклоном, ж/б перекрытия.
Водосточные трубы с подогревом
В доме проведена встроенная система вентиляции
Ночное освещение по периметру дома.
Участок 10 соток - ИЖС. 
Дорога хорошая без ухабов, отсыпана гравием.
Чистая продажа, один взрослый собственник, без обременений, прописанных нет.

Дата обновления: 25 ноября 2025

Дом/Коттедж/Таунхаус/Дуплекс Ипотека под ИЖС От собственника