Продажа торговой площади

Тверская область, Тверь, Бурашевское ш, 60

17 516 800 ₽

140 135 ₽ за м²

125 м²
Площадь
1/15
Этаж

Поделиться

Добавить в избранное

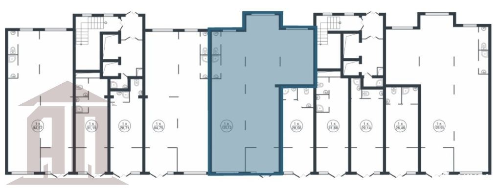
Продаётся коммерческое помещение 125, 12м - первая линия, первый этаж нового дома ЖК АТМОСФЕРА, Бурашевское шоссе д.60.
Коммуникации: электричество до 40 КВт, отопление - газовая котельная, центральное водоснабжение и канализация, с/у, высота потолков 3, 5 метра. Бесплатная парковка. Все помещения без внутренней отделки.
Удобное расположение современный район ЖК из многоэтажных домов. Высокая плотность заселения. Развитая инфраструктура рядом школа, детский сад, сетевые супермаркеты. 
В шаговой доступности новые площадки для детей, занятия спортом, досуга и парковая зона отдыха.
Все условия для успешного бизнеса.
Цена: 125, 12м - 140  000 рублей/м.
Без комиссии.

Дата обновления: 29 января 2026