Аренда торговой площади

Тверская область, Тверь, Бурашевское ш, 60

36 047 ₽/мес

1 093 ₽ за м²/мес.

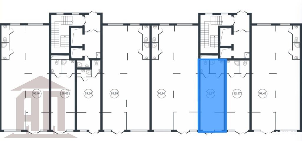
33 м²
Площадь
1/15
Этаж

Это объявление снято с публикации.

Если это ваше объявление, восстановите его в личном кабинете или подайте новое.

В ином случае, вы можете перейти на главную или поискать другие предложения.

Сдается коммерческое помещение 32, 77 м, 1-я линия, 1-й этаж нового многоквартирного дома ЖК АТМОСФЕРА.
Помещение расположено в 15 этажном доме по адресу : г.Тверь Бурашевское шоссе д.60.
Коммуникации: электричество до 40 КВт, индивидуальное газовое отопление, водоснабжение и канализация, свой с/у, высота потолков 3 метра. Бесплатная парковка. Так как помещение без внутренней отделки предоставляются арендные каникулы на 3 месяца. 
Удобное расположение современный спальный район ЖК многоэтажных домов АТМОСФЕРА. Высокая плотность заселения. Развитая инфраструктура рядом школа, детский сад, супермаркеты. В шаговой доступности новые площадки для детей, занятия спортом, досуга и парковая зона отдыха. 
Все условия для успешного бизнеса. 
Стоимость аренды 36 047 рублей в месяц.
Без комиссии.

Дата обновления: 11 февраля 2026