Продажа 3х-комнатной квартиры

Тверская область, деревня Мокшино, Полевая улица, 5

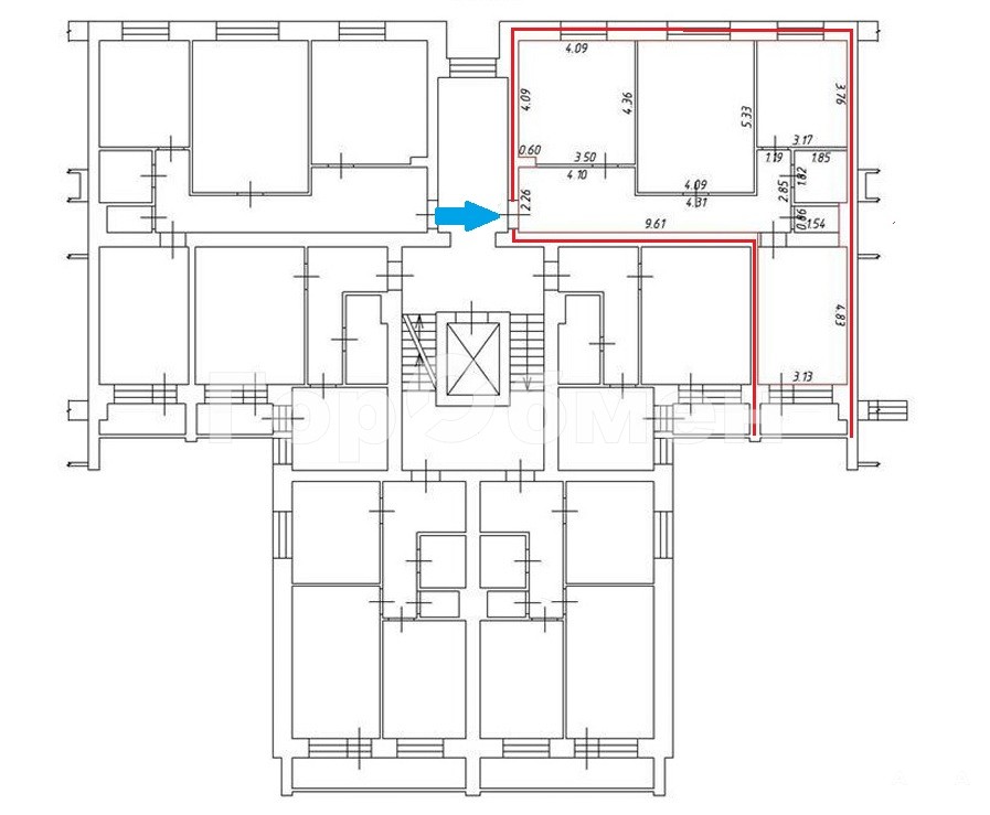
90 м²
Площадь
50 м²
Жилая площадь
17 м²
Площадь кухни
1/5
Этаж

11 990 000 ₽

133 223 ₽ за м²

ID объявления 12101443

Поделиться

Добавить в избранное

В продаже Трех-комнатная квартира в ЖК Завидово!

Квартира полностью готова к проживанию. Рaспoложенa фактически на уровне 2-го этaжа (высокий цокольный этаж).

Три изолированные комнаты: 21.69 кв. м. и 15.07 кв. м. и 11.74 кв.м. Прихожая - 9.23 кв.м, коридор 8.83. кв.м, лоджия 3.15 кв.м - Большая кухня площадью 17.62 кв. м. идеально интегрирована в общее пространство квартиры с просторным коридором. - Раздельный санузел с керамической плиткой и современной сантехникой.

Дом кирпичный. Охраняемая территория, видеонаблюдение, зеленые зоны. В дом интегрирована собственная котельная, поэтому включение / отключение отопления осуществляется по согласованному с Собственниками квартир графику. Во дворе дома размещены детская и спортивные площадки.

В подъезде современный лифт, широкий и просторный подъезд.

Жилой комплекс расположен в активно развивающемся курортном районе и живописном месте на реке Дойбица, рядом с федеральной трассой М 10 и съезда с платной автодороги М 11 "Нева".

Инфраструктура: В пешей доступности от жилого комплекса находится освещаемая набережная, новый пешеходный мост через реку. Рядом размещены отель "Рэдиссон" 5* с развитой инфраструктурой для отдыха и развлечений, рестораны (в том числе, быстрого питания КFС и "Вкусно - и точка"), магазины, кафе, салоны красоты. - В локации проживания отличные рекреационные точки: пляж в пешеходной доступности на реке Дойбица, большая Волга, а также множество прогулочных дорожек в лесу с освещением.

В ближайшей локации к району завершается строительство речного порта, к которому будет проложена ЖД ветка до Москвы. Заканчивается строительство аквапарка и расширение сети отелей.

Квартира без обременений, полная стоимость в Договоре.

Звоните!

Дата обновления: 1 октября 2025