Продажа дачи

Тверская область, Старое Мелково,

84 м²
Площадь
1
Этажность
10 сот
Площадь участка

6 600 000 ₽

78 572 ₽ за м²

ID объявления 12183434

Поделиться

Добавить в избранное

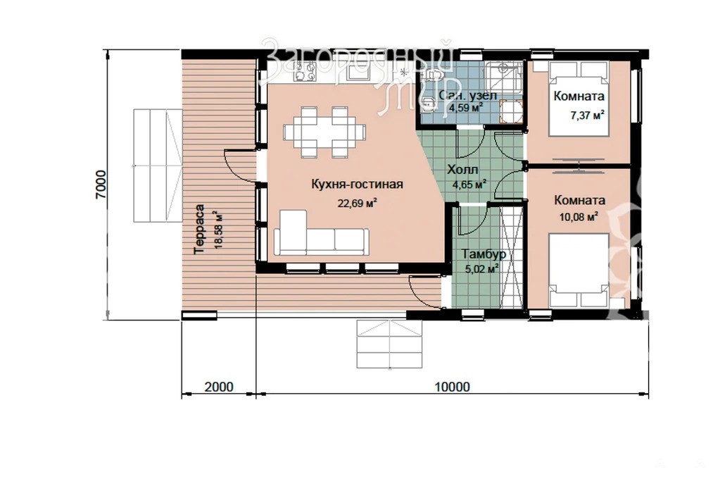
Лот 67419. Старое Мелково. КП Моя Слобода. Дом в охраняемом коттеджном поселке на берегу реки Волги. Дом в стиле Барнхаус, площадью 84 кв.м с отделкой «под ключ».

Собственник предоставляет рассрочку по оплате в размере 50% на 1 год.

У дома кровля – профнастил Grand Line 0.5 Rooftop, фундамент – железобетонные забивные сваи 150*150 мм, утепление пола и кровли -плита минераловатная 250 мм, утепление внешних стен - плита минераловатная 150 мм, внешняя отделка дома - профнастил Grand Line 0.5 Rooftop/вагонка Штиль, окна – тройные стеклопакеты.
В доме уютная кухня-гостиная, 2 спальни, просторный холл, санузел.

Участок. 10 соток, для дачного строительства. Коммуникации: отопление - электроконвекторы, электричество 15 кВт, скважина, септик Евролос ПРО 6+.

Поселок находится в шаговой доступности от реки Волга. Рядом инфраструктура всесезонного курорта «Завидово» - аквапарк, гольф поля, горнолыжный склон, семейный парк. AFY-506707712

Дата обновления: 20 ноября 2025

Дом/Коттедж/Таунхаус/Дуплекс В рассрочку От собственника